Wetterschutzgitter Type -VK- mit selbstständiger Überdruckklappe
Weather protection grille typ -VK- with independent overpressure flap

Wetterschutzgitter Type -V- mit selbsttätiger Überdruckklappe
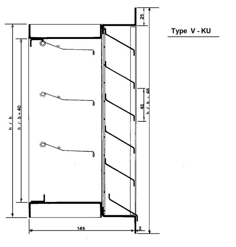
Type V-KU drückend (Fortluft)
Type V-Ki saugend (Frischluft)
- aus rostfreiem Stahlblech (1.4571 / 1.4301), mit hintergebautem, rostfreien Vogelschutz aus
V2A (1.4301), jedoch in Sonderausführung mit angebauter, selbsttätiger Jalousieklappe - aus Kupfer, mit hintergebautem, rostfreien Vogelschutz aus V2A (1.4301), jedoch in
Sonderausführung mit angebauter, selbsttätiger Jalousieklappe - aus verzinktem Stahlblech, mit hintergebautem, verzinkten Vogelschutz, jedoch in
Sonderausführung mit angebauter, selbsttätiger Jalousieklappe
_____________________________________________________________________________________________________________________________
Weather protection grille typ -V- with automatic overpressure flap
Typ V-KU pushing (exhaust air)
Typ V-Ki intake (fresh air)
- made of stainless steel sheet (1.4571 / 1.4301), with rustproof bird protection V2A (1.4301), but in special version
with mounted, automatic shutter flap - made of copper, with rustproof bird protection made of V2A
(1.4301), but in
special version with attached,
automatic shutter flap - made of galvanized sheet steel, with galvanized bird protection, but in Special version with attached,
automatic shutter flap
