Selbsttätige Überdruckklappe Type Oi-O / OU-O ,
mit beidseitigem Rundrohranschluss
Self acting overpressure damper typ Oi-O / OU-O,
with round-tube connection on both sides

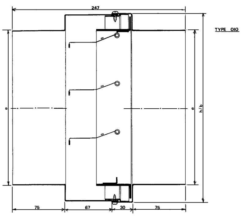
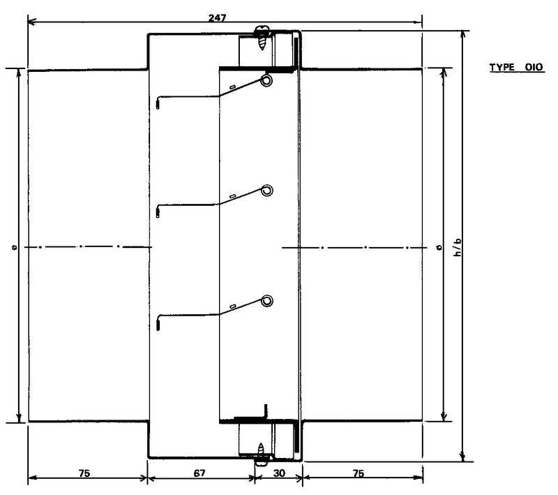
Selbsttätige Überdruckklappe mit beidseitigem Rundrohranschluss
Type -O i -O- Luftrichtung drückend
Type -OU -O- Luftrichtung saugend
- aus seewasserbeständigem Aluminium (Al Mg³), Lamellen profiliert mit Gummidichtung, Rundrohr verzinkt,
- aus verzinktem Stahlblech, Lamellen Profiliert mit Gummidichtung, Rundrohr verzinkt,
- aus rostfreiem Stahlblech (1.4571 / 1.4301), Lamellen Profiliert mit Gummidichtung, Rundrohr aus V2A,
- aus 2 mm Kupferblech, Lamellen Profiliert mit Gummidichtung, Rundrohr aus V2A,
_______________________________________________________________________________________________________________________________________
Automatic overpressure flap with round-tube connection on both sides
Automatic overpressure flap with round-tube connection on both sides
Typ -O i -O- air direction pressing
Typ -OU -O- air direction suction
- made of seawater-resistant aluminum (Al Mg³), lamellas profiled with rubber seal, round tube galvanized,
- made of galvanized sheet steel, lamellas profiled with rubber seal, round tube galvanized,
- made of stainless steel sheet (1.4571 / 1.4301), lamella profiled with rubber seal, round tube made of V2A,
- made of 2 mm copper sheet, lamellas profiled with rubber seal, round tube made of V2A,
Round pipe connection dimensions, both sides
Rundrohranschlussmaße, beidseitig
Rundrohranschlussmaße, beidseitig
Grid dimensions b x h diameter
Gittermaße b x h Durchmesser 205 / 205 DN 160 mm
225 / 225 DN 180 mm
245 / 245 DN 200 mm
269 / 269 DN 224 mm
295 / 295 DN 250 mm
325 / 325 DN 280 mm
345 / 345 DN 300 mm
360 / 360 DN 315 mm
400 / 400 DN 355 mm
445 / 445 DN 400 mm
495 / 495 DN 450 mm
545 / 545 DN 500 mm
605 / 605 DN 560 mm
675 / 675 DN 630 mm
755 / 755 DN 710 mm
845 / 845 DN 800 mm
