Type -V- mit RundrohranschlussTyp -V- with round tube connection
Wetterschutzgitter Type -V- mit Rundrohranschluss
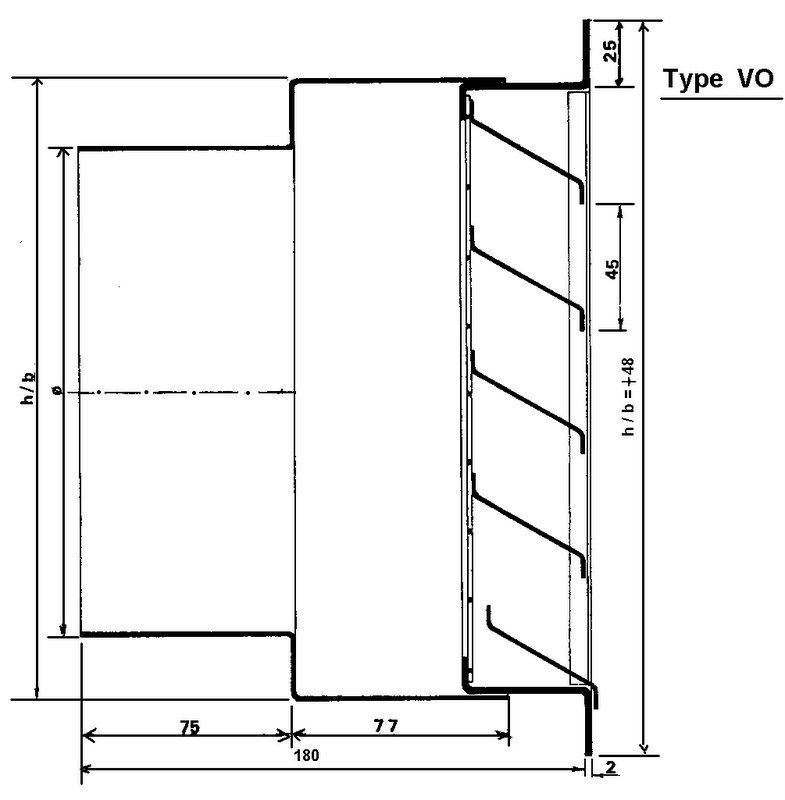
Type VO
- aus rostfreiem Stahlblech (1.4571 / 1.4301), mit hintergebautem, rostfreien Vogelschutz aus
V2A (1.4301), jedoch in Sonderausführung mit angebautem, rostfreien (1.4301) Rundrohranschluss - aus Kupfer, mit hintergebautem, rostfreien Vogelschutz aus V2A (1.4301), jedoch in
Sonderausführung mit angebautem, rostfreien (1.4301) Rundrohranschluss - aus verzinktem Stahlblech, mit hintergebautem, verzinkten Vogelschutz, jedoch in
Sonderausführung mit angebautem, verzinkten Rundrohranschluss
_________________________________________________________________________________________________________________________________________
Weather protection grille type -V- with round tube connection
Type VO
- made of stainless steel sheet (1.4571 / 1.4301), with rear mounted, rustproof bird protection V2A (1.4301),
but in special version with attached, stainless (1.4301)
round tube connection - made of copper, with back-mounted, rustproof bird protection made of V2A (1.4301),
but in Special version with attached, stainless (1.4301)
round tube connection - made of galvanized sheet steel, with behind - built, galvanized bird protection,
but in Special version with attached, galvanized round tube connection
Round pipe connection dimensions
Rundrohranschlussmaße
Grid dimensions b x h diameter Gittermaße b x h Durchmesser
205 / 205 DN 160 mm
225 / 225 DN 180 mm
245 / 245 DN 200 mm
269 / 269 DN 224 mm
295 / 295 DN 250 mm
325 / 325 DN 280 mm
345 / 345 DN 300 mm
360 / 360 DN 315 mm
400 / 400 DN 355 mm
445 / 445 DN 400 mm
495 / 495 DN 450 mm
545 / 545 DN 500 mm
605 / 605 DN 560 mm
675 / 675 DN 630 mm
755 / 755 DN 710 mm
845 / 845 DN 800 mm
Wetterschutzgitter Type -V- mit Rundrohranschluss
Type VO
aus rostfreiem Stahlblech (1.4571 / 1.4301), mit hintergebautem, rostfreien Vogelschutz aus
V2A (1.4301), jedoch in Sonderausführung mit angebautem, rostfreien (1.4301) Rundrohranschluss
V2A (1.4301), jedoch in Sonderausführung mit angebautem, rostfreien (1.4301) Rundrohranschluss
aus Kupfer, mit hintergebautem, rostfreien Vogelschutz aus V2A (1.4301), jedoch in
Sonderausführung mit angebautem, rostfreien (1.4301) Rundrohranschluss
Sonderausführung mit angebautem, rostfreien (1.4301) Rundrohranschluss
aus verzinktem Stahlblech, mit hintergebautem, verzinkten Vogelschutz, jedoch in
Sonderausführung mit angebautem, verzinkten Rundrohranschluss
_________________________________________________________________________________________________________________________________________
Weather protection grille type -V- with round tube connection
Sonderausführung mit angebautem, verzinkten Rundrohranschluss
_________________________________________________________________________________________________________________________________________
Weather protection grille type -V- with round tube connection
Type VO
- made of stainless steel sheet (1.4571 / 1.4301), with rear mounted, rustproof bird protection V2A (1.4301),
but in special version with attached, stainless (1.4301) round tube connection - made of copper, with back-mounted, rustproof bird protection made of V2A (1.4301),
but in Special version with attached, stainless (1.4301) round tube connection - made of galvanized sheet steel, with behind - built, galvanized bird protection,
but in Special version with attached, galvanized round tube connection
Round pipe connection dimensions
Rundrohranschlussmaße
205 / 205 DN 160 mm
225 / 225 DN 180 mm
245 / 245 DN 200 mm
269 / 269 DN 224 mm
295 / 295 DN 250 mm
325 / 325 DN 280 mm
345 / 345 DN 300 mm
360 / 360 DN 315 mm
400 / 400 DN 355 mm
445 / 445 DN 400 mm
495 / 495 DN 450 mm
545 / 545 DN 500 mm
605 / 605 DN 560 mm
675 / 675 DN 630 mm
755 / 755 DN 710 mm
845 / 845 DN 800 mm
